Ce este un releveu, când ai nevoie de el și cât durează să-l obții în cadrul unei locuinţe

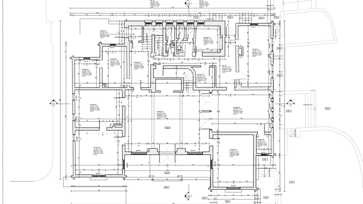
Un releveu este o reprezentare grafică exactă, la scară, a unei clădiri sau a unui spațiu, obținută prin măsurarea detaliată a elementelor sale. Este un document tehnic care include dimensiunile exacte ale camerelor, pereților, poziționarea ușilor și ferestrelor, dar și a altor elemente fixe precum coloane sau scări.
Practic, presupune transpunerea în detaliu a realității în planșe tehnice. În construcții și arhitectură, un releveu al unei clădiri include măsurătorile pereților, ferestrelor, ușilor, scărilor, precum și detaliile structurale și estetice.
De unde poți să obții releveul de care ai nevoie?
Poți solicita un releveu BimGis. Compania BimGis îți poate pune la dispoziție servicii profesionale de releveu, realizând măsurători as-built de înaltă precizie pentru diverse tipuri de clădiri.
Cu ajutorul tehnologiei moderne de scanare 3D și al echipamentelor performante, această companie reușește să colecteze rapid date detaliate din teren, asigurând în același timp o acuratețe ridicată și un nivel superior de eficiență.
Când poate fi necesar un releveu?
Un releveu îți poate fi necesar ori de câte ori ai nevoie de o imagine clară, exactă și detaliată a unui teren, a unei clădiri sau a unei rețele de utilități. Indiferent că este vorba despre proiecte de arhitectură, construcții, restaurări sau dezvoltări urbane, acesta constituie fundamentul pe care se pot construi documentațiile corecte și planurile realiste.
Lipsa unui releveu poate duce la erori de proiectare, la incompatibilități tehnice și, inevitabil, la costuri suplimentare în execuția lucrărilor.
De la BimGis poți solicita relevee pentru rețelele de utilități, pentru patrimoniu cultural și situri arheologice etc.
Unul dintre cele mai folosite tipuri de releveu este cel necesar pentru terenuri și parcele cadastrale. Acesta surprinde relieful și limitele proprietăților și reprezintă baza planurilor cadastrale, urbanistice sau de proiectare a viitoarelor construcții.
La fel de importante sunt și releveele arhitecturale, care descriu în detaliu clădirile și structurile existente: vorbim de case, apartamente, blocuri, hale industriale, biserici sau spații comerciale. Acestea devin fundamentale în lucrări de renovare, consolidare sau restaurare.
De asemenea, poți solicita relevee pentru rețelele de utilități, care identifică traseele conductelor și cablurilor, indispensabile extinderilor și modernizărilor de infrastructură.
În dezvoltarea urbană, măsurătorile oferă o imagine de ansamblu, fiind utile atât în studiile de fezabilitate, cât și în monitorizarea șantierelor. Infrastructura de drumuri, poduri sau căi ferate nu poate fi realizată fără măsurători detaliate, iar mediul agricol și silvic se bazează pe relevee pentru irigații, împăduriri sau gestionarea terenurilor.
Un rol aparte îl au releveele pentru patrimoniu cultural și situri arheologice, realizate prin scanare 3D și fotogrammetrie, care documentează și conservă monumente istorice și zone de interes arheologic.
Totodată, în proiectele de amenajări interioare sau exterioare, de la compartimentări și instalații la grădini și spații verzi, releveele reprezintă punctul de plecare pentru un design corect.
Astfel, indiferent că discutăm despre case, apartamente, clădiri industriale, biserici, terenuri agricole sau proiecte de infrastructură, releveul rămâne un instrument esențial. Releveul este documentul tehnic care arată realitatea fizică prin date clare, date ce pot fi interpretate și valorificate în arhitectură, construcții și urbanism.
Cât durează realizarea unui releveu BimGis?
Durata realizării unui releveu BimGis variază în funcție de complexitatea și dimensiunea obiectivului măsurat. Pentru un apartament sau o casă de dimensiuni obișnuite, întregul proces poate fi finalizat relativ rapid, în aproximativ 1–2 zile lucrătoare de la momentul efectuării măsurătorilor.
Această perioadă include atât partea de scanare, cât și prelucrarea și organizarea datelor pentru obținerea planurilor finale.
În cazul unor proiecte mai ample, cum ar fi clădirile cu mai multe niveluri, spațiile comerciale întinse sau chiar ansamblurile de clădiri, timpul necesar poate fi mai mare. Aceasta se datorează volumului ridicat de date obținute prin scanare și complexității procesului de modelare digitală, care necesită o prelucrare atentă pentru a reda cu acuratețe fiecare detaliu arhitectural și structural.
De aceea, pentru lucrările de anvergură, este recomandată o discuție prealabilă și o evaluare a proiectului. În urma acestei analize, echipa poate oferi un termen realist și adaptat specificului obiectivului.
În concluzie, indiferent că este vorba despre un apartament, o casă, o biserică sau o clădire industrială, releveul BimGis se realizează într-un timp optim, asigurând echilibrul între rapiditate și precizia rezultatelor.









